福岡市の中古マンション・中古住宅・土地など不動産情報はおまかせ!!

0120-09-8000

買いたい

ホーム > 買いたい > フォルム小倉南弐番館

フォルム小倉南弐番館

オーナーチェンジ 表面利回り15.65%

  • 表面利回り15.65%
  • 角部屋・南向きバルコニー
価格 230万円 PDFを見る
種別 中古マンション
間取り ワンルーム
キャッチコピー オーナーチェンジ 表面利回り15.65%
その他 JR日豊本線 安部山公園駅 徒歩13分
西鉄バス 湯川バス停 徒歩2分
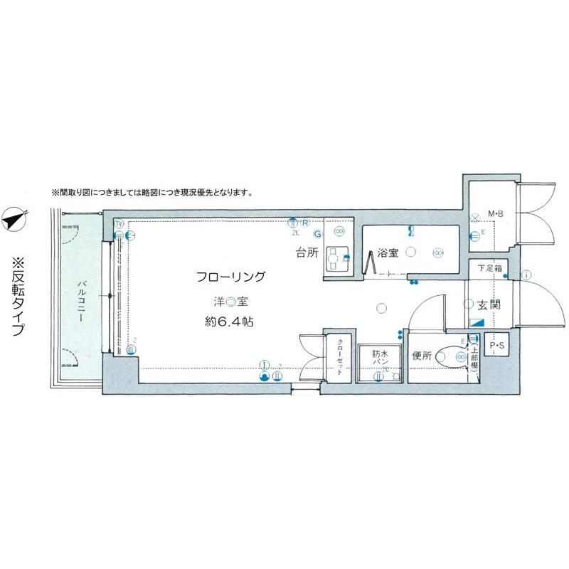
専有面積:壁心18.88m2(5.71坪)
バルコニー:南 2.43m2
階建・階:地上5階 3階部分
建物構造:鉄筋コンクリート造
間取り内訳:洋6.4帖
管理費:5,800円(月額)
修繕積立金:4,000円(月額)
現況:賃貸中
賃料:30,000円(月額)
備考:オーナーチェンジ

株式会社コア    下記までお気軽にお問い合わせください。

売買0120-09-8000 賃貸0120-41-0066

メールでのお問い合わせはこちら

下記までお気軽にお問い合わせください。

売買0120-09-8000 賃貸0120-41-0066

メールでのお問い合わせはこちら